返回

恒大御景天下

    • 参考价格: 9500元/㎡
    • 项目地址:株洲万丰湖·天元区新马东路
    • 建筑类别:别墅 普通住宅
    • 装修情况: 毛坯
    • 开发商: 株洲金碧置业有限公司
    • 联系电话: 073128789999
  • 最新动态
    恒大御景天下升级装修花园洋房在售

    恒大御景天下洋房清尾一口价带装8088元/㎡起,建筑面积约122-213㎡升级装修花园洋房在售。

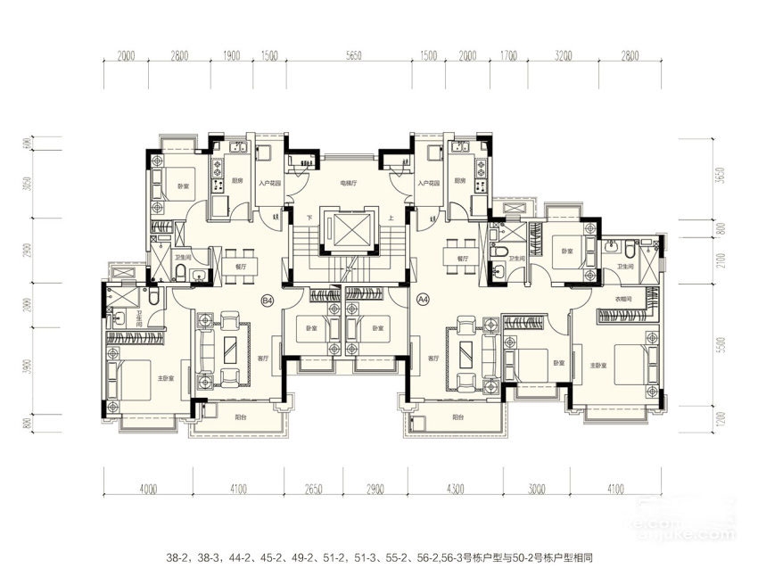
  • 户型图

    50栋四五层

    50栋七层

    50栋六层

    50栋三层

    50栋二层

    ‹ ›
  • 位置及周边

    • 幼儿园:社区自建6000㎡品牌幼儿园
      中小学:白鹤教育集团新马分校、新马中学(规划)
      大学:湖南工业大学
      综合商场:项目配套约2万方商业街
      其他:规划逾2000㎡业主专属铂金会所
      小区内部配套:幼儿园、快递柜、超市、商业街、儿童游乐场、地下停车场
    • 点击展开全部信息ν
  • 楼盘详情

    • 所属区域:天元
    • 总占地面积:442055平方米
    • 总建筑面积:878437平方米
    • 容积率:1.99
    • 绿地率:40%
  • 楼盘介绍

    恒大御景天下,世界500强恒大厚积22年豪宅开发经验,深耕株洲第五部巨著,落子万丰湖畔,雄踞新马EBD生态商务区。项目近临株洲大道,向东接驳株洲市中心,向西连通湘潭。毗邻株洲西高铁,京港澳高速,便捷通达全国。规划中地铁4号线贯通南北,长株潭磁悬浮。

    白鹤教育集团新马学校、新马中学、湖南王府国际学校(规划)等众多学校环伺。新马EBD大健康产业城规划于此,提供一站式的医药医疗、养老休闲配套服务。近享时代广场、麦德龙、株百栗雨店等城市繁华地,生活居无所忧。

    皇家风情园林,内藏私家大湖。巨资打造商业风情街,皇家会所,构筑综合性全能社区。尊享恒大全新升级的全屋9A精装体系,集合国际知名家装品牌,精选上好装修材料,打造国际一流品质。国家一级资质金碧物业,全程一对一贵宾级服务,为您生活保驾护航。

    作为株洲罕见的600亩低密湖居大盘,恒大御景天下墅境洋房深谙人居观念,既融合了都市的繁华,也满足了亲近湖景自然的生活愿景。建面约113-216㎡墅境洋房错落相簇,户户拥景,精工而筑,匠心其中,每一个户型设计,都倾注恒大对于建筑的理解和对品质的执着追求。考究每一处细节,产品、园林、户型、装修等多方面升级,匠心规划,演绎出产品至上的匠人精神,缔造传世名邸。

    与高知为邻,有墅境洋房相伴,御景天下水岸高层,近可揽中心园林,远可观万丰湖景。建面约98-171㎡墅质高层,是恒大深耕株洲多年研究人居方式后,在尺度、动线、位置上精心规划,以达到满足近乎苛刻的居住体验。

    恒大御景天下,集萃一城精华资源,为您开启期盼已久的湖畔人生。
    点击展开全部信息ν
  • 重要提示

    本页面内容,旨在为满足广大用户的信息需求而采集提供,并非广告服务性信息。页面所载内容不代表本网站之观点或意见,仅供用户参考和借鉴,最终以开发商实际公示为准。商品房预售须取得《商品房预售许可证》,用户在购房时需慎重查验开发商的证件信息。本页面所提到房屋面积如无特别标示,均指建筑面积。